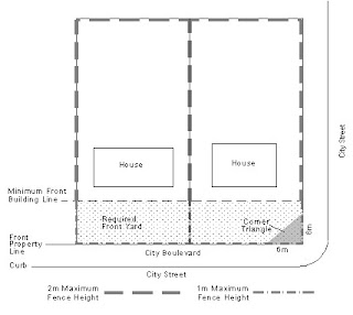
Residential Fences, Saskatoon's Zoning Bylaw 8770 sets out the regulations governing the height and location of fences built on residential properties. Fences built within these regulations do not require a building permit. If in doubt as to compliance of a proposed fence, contact the Planning and Development Branch. Fence heights are limited to 1.0 metre in front yards and 2.0 metres in side and rear yards. (See Figure A below) The required front yard is the area from the front property line to the minimum front building line as established in each zoning district. (See Figure B)
The minimum required front yard depth for most residential districts is 6.0 metres except:
R1 = 9 metres required front yard for sites more than 34 m deep
R1B = 3 to 6 metres required front yard
In the case of corner lots, fences and vegetation higher than 1.0 metre cannot be situated in a triangular zone measured 6.0 metres in each direction from the street corner of the property. In addition, fences and vegetation less than 1.0 metre in height will not be permitted if they obstruct the view of vehicular traffic. (See Figure B)
How is the height of a fence measured?
As illustrated in Figure A, the height of a fence is the distance from the ground level immediately adjacent to the fence to the highest point of the fence.
Can noise or an unattractive view be blocked?
When side or rear property lines abut a freeway, expressway, highway or railway right-of-way or an associated buffer strip, a 2.5 metre high wall or fence is permitted.
What type of fence is permitted?
The choice of design, construction and materials is up to the individual. However, fences must be maintained in a safe and reasonable state of repair.
If a neighbour is building a fence between two properties, is the other party obligated to pay half?
Cooperation between neighbours often results in cost-shared projects. The City of Saskatoon has no jurisdiction in disputes arising over fence construction, cost or maintenance as these matters fall within provincial jurisdiction and can be resolved through civil litigation.
Who do I need to notify?
To avoid serious injury or disruption of utility services, you should contact the following utility agencies at least 48 hours prior to digging, so that all utility lines can be properly located. There is no fee for this service.
SaskPower 1-888-757-6937
SaskEnergy 975-8515
SaskTel Dial 611
City Electrical 975-3056
Shaw Cable 665-3764
What about fences around swimming pools?
The regulation of fences around pools are not addressed on this page. Contact the Building Standards Branch prior to construction.
Is the front property line located adjacent to the sidewalk?
In most cases, the front property line is not located adjacent to the sidewalk. Often a city boulevard exists between the sidewalk and the property line. The width of this boulevard may vary from one street to the next and can be verified by contacting the City's Municipal Engineering Branch (975-2454).
Does the front of a house always face the front property line?
Not necessarily, the narrowest width of the lot is generally considered the front of the property. If you are unsure as to the location of your front yard, contact the Planning and Development Branch.
How are property lines determined?
A Surveyor's Certificate or a Real Property Report prepared by a Saskatchewan Land Surveyor can be used to accurately locate property site lines. It is the responsibility of the property owner to ensure the accurate location of fencing relative to their property site lines.
Figure A
Figure B
Source: saskatoon
The minimum required front yard depth for most residential districts is 6.0 metres except:
R1 = 9 metres required front yard for sites more than 34 m deep
R1B = 3 to 6 metres required front yard
In the case of corner lots, fences and vegetation higher than 1.0 metre cannot be situated in a triangular zone measured 6.0 metres in each direction from the street corner of the property. In addition, fences and vegetation less than 1.0 metre in height will not be permitted if they obstruct the view of vehicular traffic. (See Figure B)
How is the height of a fence measured?
As illustrated in Figure A, the height of a fence is the distance from the ground level immediately adjacent to the fence to the highest point of the fence.
Can noise or an unattractive view be blocked?
When side or rear property lines abut a freeway, expressway, highway or railway right-of-way or an associated buffer strip, a 2.5 metre high wall or fence is permitted.
What type of fence is permitted?
The choice of design, construction and materials is up to the individual. However, fences must be maintained in a safe and reasonable state of repair.
If a neighbour is building a fence between two properties, is the other party obligated to pay half?
Cooperation between neighbours often results in cost-shared projects. The City of Saskatoon has no jurisdiction in disputes arising over fence construction, cost or maintenance as these matters fall within provincial jurisdiction and can be resolved through civil litigation.
Who do I need to notify?
To avoid serious injury or disruption of utility services, you should contact the following utility agencies at least 48 hours prior to digging, so that all utility lines can be properly located. There is no fee for this service.
SaskPower 1-888-757-6937
SaskEnergy 975-8515
SaskTel Dial 611
City Electrical 975-3056
Shaw Cable 665-3764
What about fences around swimming pools?
The regulation of fences around pools are not addressed on this page. Contact the Building Standards Branch prior to construction.
Is the front property line located adjacent to the sidewalk?
In most cases, the front property line is not located adjacent to the sidewalk. Often a city boulevard exists between the sidewalk and the property line. The width of this boulevard may vary from one street to the next and can be verified by contacting the City's Municipal Engineering Branch (975-2454).
Does the front of a house always face the front property line?
Not necessarily, the narrowest width of the lot is generally considered the front of the property. If you are unsure as to the location of your front yard, contact the Planning and Development Branch.
How are property lines determined?
A Surveyor's Certificate or a Real Property Report prepared by a Saskatchewan Land Surveyor can be used to accurately locate property site lines. It is the responsibility of the property owner to ensure the accurate location of fencing relative to their property site lines.
Figure A
Figure B
Source: saskatoon


